湖南柏竣建筑工程

农村独栋房屋设计图,好设计,大别墅,三层现代别墅。
发布时间:2021-06-28 10:10:49  | 人气:  | 来源: 柏竣建筑

现在农村的生活条件越来越好,大家的对房子的要求也越来越高,房子的更新迭代很快。十年前建的房子,就已经跟不上时代了。以前建的四层或者更高的别墅,高层很多都用不上,而且花的钱也多。推荐这款湖南柏竣建筑工程:农村三层现代别墅设计图,设计更加现代化,三层的设计也更加经济,也绝对实用。

201903040352595085149865c7cd95b7d0ab8.30082835.jpg

别墅参数

[层数]:三层别墅 [结构形式]:框架结构 [建筑风格]:现代风格

[开间]12.00m   [占地面积]134.56[建筑面积]273.34

[进深]13.30m   [主体造价]22~25万(仅供参考)


户型赏析


201903040352389638773275c7cd946af9626.19217205.jpg

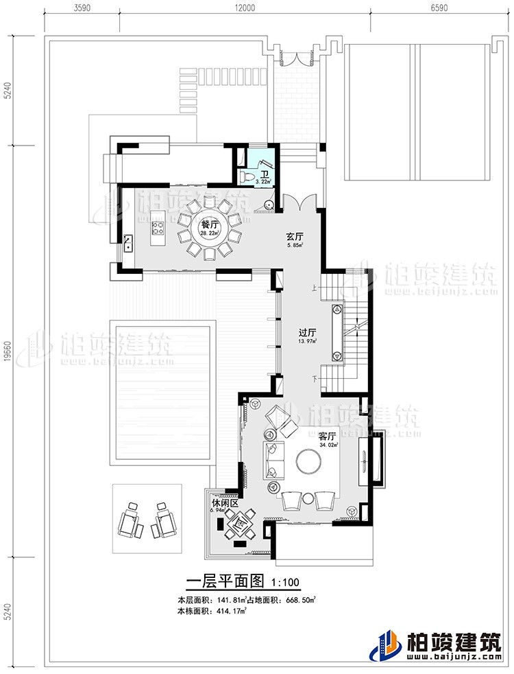
BZ321一层平面图

客厅、餐厅、厨房、活动室,门厅、卫生间

一层前方设计游泳池,也可按需设计,房屋设计新颖,34.02㎡大客厅,毗邻休闲区。大餐厅设计,一家人还是过节待客都能坐下来,吃一顿热气腾腾的家乡饭。

 

2019030403524513974588325c7cd94d18aae7.16921444.jpg

BZ321二层平面图

卧室X2、主卧、主卫

二层超大40.95㎡主卧,符合现代居住大空间需求。客间和套房自带内卫,居住更加方便,避免走夜路。设衣帽间,生活幸福感更高。


 

201903040352515309021855c7cd9530e6a64.07628599.jpg

BZ321三层平面图

多功能厅、露台

三层设两个大型露台,可按自己需求改装车阳光房也是不错的,可做露台晾晒衣物、农作物。

 


快速导航
湖南柏竣建筑工程 湖南柏竣建筑工程 江西省投资集团 江西省投资集团 江西省投资集团